48.5
48.2
48.3
48.4

Afdeling 48

Hyggelige rækkehuse i rolige omgivelser i Fårvang

I Fårvang finder du vores hyggelige rækkehusbebyggelse fra 1999 med i alt 15 lejemål. Boligerne er opført som étplans rækkehuse og har en charmerende forhave ved indgangen samt en dejlig terrasse, der vender ud mod en stor, grøn fællesplæne – perfekt til afslapning og hyggeligt naboskab.

Flere beboere har udvidet boligen med en udestue for ekstra opholdsrum, og det er en mulighed efter aftale med administrationen.

Der er central parkering midt i bebyggelsen, hvilket skaber et roligt og trygt miljø omkring boligerne.

Fårvang er en aktiv og naturskøn landsby med skole, daginstitutioner, sportshal, svømmehal og gode indkøbsmuligheder – alt sammen inden for kort afstand. Byen byder på et stærkt lokalt fællesskab og ligger omgivet af smuk natur, som indbyder til gå- og cykelture.

Afdelingen er opført i 1999
Det er tilladt at holde 1 hund eller 1 inde kat
Boligerne har egen have
Lejer skal selv kontakte en udbyder af tv og internet
Vand er inkl i lejen
Varme afregnes direkte med leverandør
El afregnes direkte med leverandør
Afdelingen har 7 garager til udlejning
Afdelingen har parkeringspladser til rådighed

Erik From Hedegaard

Lærkevej 56

8882 Fårvang

Jens Frederiksen

Lærkevej 50

8882 Fårvang

Bjørn Bartram

Lærkevej 48

8882 Fårvang

0001 0048 1321

Lærkevej 32

Afd. 48

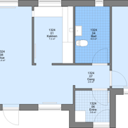
Størrelse:
73 m2
Husleje:
6460 kr.
Indskud:
18288 kr.
Antal rum:
2
0001 0048 1322

Lærkevej 34

Afd. 48

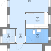
Størrelse:
89 m2
Husleje:
7422 kr.
Indskud:
20934 kr.
Antal rum:
3
0001 0048 1323

Lærkevej 36

Afd. 48

Størrelse:
89 m2
Husleje:
7422 kr.
Indskud:
20934 kr.
Antal rum:
3
0001 0048 1324

Lærkevej 38

Afd. 48

Størrelse:
73 m2
Husleje:
6460 kr.
Indskud:
18288 kr.
Antal rum:
2
0001 0048 1325

Lærkevej 40

Afd. 48

Størrelse:
35 m2
Husleje:
2581 kr.
Indskud:
7221 kr.
Antal rum:
1
0001 0048 1326

Lærkevej 42

Afd. 48

Størrelse:
73 m2
Husleje:
6460 kr.
Indskud:
18288 kr.
Antal rum:
2
0001 0048 1329

Lærkevej 48

Afd. 48

Størrelse:
73 m2
Husleje:
6460 kr.
Indskud:
18288 kr.
Antal rum:
2

John2

John Ladefoged Jensen

Serviceleder

Tlf. 22698660

drift@silkeborgboligselskab.dk

Kennet7

Kennet Bøgh Nielsen

Anlægsleder

Tlf. 22698669

kbn@silkeborgboligselskab.dk

Interesseret?

Du er velkommen til at kontakte os på telefon eller mail, hvis du har spørgsmål (se telefontider nederst på siden).

Tlf. 86 82 51 44

info@silkeborgboligselskab.dk

Søg denne afdeling 27622Aa1 F33c 4F82 8718 45Be34426d98
Silkeborg Boligselskab grafik med huse og en mand