Julelukket

Administrationen holder lukket fra den 19/12 til og med den 2/1. 

Driftstelefonen har normal træffetid på hverdage mellem jul og nytår.

65.4
Afd. 65
65.3
65.2
65.1

Afdeling 65

Moderne lavenergiboliger i hyggelige Sorring

Det første, man møder, når man kommer til Bredsig i Sorring, er en flot og indbydende bebyggelse. Boligerne, opført i 2015, er omgivet af beplantning, som med tiden har skabt et hyggeligt og roligt bomiljø.

Alle boliger har flot forhave, carport samt mindre baghave med terrasse – perfekt til afslapning og udendørs hygge. Byggeriet er et lavenergibyggeri, hvor overskudsstrøm fra solcelleanlæglet afregnes direkte til beboerne, og boligerne er desuden udstyret med hårde-hvidevarer af høj kvalitet.

Sorring ligger ca. 15 km øst for Silkeborg og kun få kilometer fra motorvejen til Århus/Herning, hvilket gør området bekvemt for både familier og pendlere. Området byder på skole, børnehave, DagliBrugsen, frisør og andre hverdagstilbud, og der er gode busforbindelser til både Silkeborg og Århus.

Bredsig kombinerer moderne og energivenlige boliger med rolige omgivelser og nem adgang til hverdagens faciliteter – ideelt for familier, par og seniorer.

Afdelingen er opført i 2015
Det er tilladt at holde 1 hund eller 1 inde kat
Boligerne har have med flisebelagt terrasse
Lejer skal selv kontakte en udbyder af tv og internet
Vand afregnes direkte med leverandør
Varme afregnes direkte med leverandør
El afregnes direkte med leverandør
Afdelingen har parkeringspladser til rådighed
Afd. 23 har 2 gæsteværelser til udlejning. Kontakt administrationen for booking.
Der er køleskab med fryseskab, induktionskogeplade, indbygningsovn, emhætte og opvaskemaskine
Boligerne har vaskemaskine og tørretumbler
Overskudsstrøm fra solcelleanlægget afregnes direkte til beboerne

Helle Sørensen

Bredsig 24 C

8641 Sorring

Filip Ray Noermark

Bredsig 24 B

8641 Sorring

Lis Berg Gertsen

0001 0065 1598

Bredsig 24 A

Afd. 65

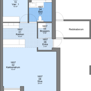
Størrelse:
102 m2
Husleje:
8087 kr.
Indskud:
37770 kr.
Antal rum:
4
0001 0065 1599

Bredsig 24 B

Afd. 65

Størrelse:
100 m2
Husleje:
8073 kr.
Indskud:
37770 kr.
Antal rum:
4
0001 0065 1602

Bredsig 24 E

Afd. 65

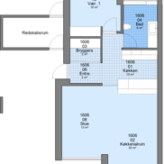
Størrelse:
88 m2
Husleje:
7388 kr.
Indskud:
33894 kr.
Antal rum:
3
0001 0065 1605

Bredsig 24 H

Afd. 65

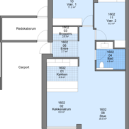
Størrelse:
89 m2
Husleje:
7395 kr.
Indskud:
33894 kr.
Antal rum:
3
0001 0065 1606

Bredsig 24 K

Afd. 65

Størrelse:
75 m2
Husleje:
6586 kr.
Indskud:
30505 kr.
Antal rum:
2
0001 0065 1607

Bredsig 24 L

Afd. 65

Størrelse:
77 m2
Husleje:
6599 kr.
Indskud:
30505 kr.
Antal rum:
2

John2

John Ladefoged Jensen

Serviceleder

Tlf. 22698660

drift@silkeborgboligselskab.dk

Kennet7

Kennet Bøgh Nielsen

Anlægsleder

Tlf. 22698669

kbn@silkeborgboligselskab.dk

Interesseret?

Du er velkommen til at kontakte os på telefon eller mail, hvis du har spørgsmål (se telefontider nederst på siden).

Tlf. 86 82 51 44

info@silkeborgboligselskab.dk

Søg denne afdeling 27622Aa1 F33c 4F82 8718 45Be34426d98