Silkeborg

Silkeborg

Afdeling 23

Kastanievej 5-19

Afdelingen består af rækkehuse beliggende i Sorring. Sorring ligger ca. 15 km øst for Silkeborg og kun få km fra motorvejen til Århus. I Sorring finder du DagligBrugsen, skole og børnehave. Der er gode busforbindelser til både Silkeborg og Århus.

Boligerne på Kastanievej er ældreboliger, hvor opskrivningen sker hos Silkeborg Kommune. Kastanievej 5-19: I perioder udnytter kommunen ikke alle boligerne, så vi har mulighed for at leje dem ude efter den almindelige venteliste.

Du kan følge udbuddet af boliger under Ledige boliger ligesom du altid er velkommen til at kontakte administrationen for at få en snak om mulighederne.

 

Oversigtskort over afdeling 23 - Kastanievej

Opførelsesår
1988
Husdyr
Det er tilladt at holde 1 hund eller 1 inde kat
Udgiftsarter
El afregnes direkte med leverandør
Udeophold
Alle boliger har egen have
Internet/tv/tele
Kastanievej: Tv-grundpakke fra Aura (Waoo)
...

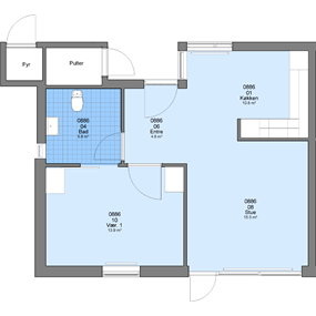
Kastanievej 13
Afd. 23

  • Størrelse: 60 m2
  • Husleje: 5.342 kr.
  • Indskud: 15.426 kr.
  • Antal rum: 2 rum
...

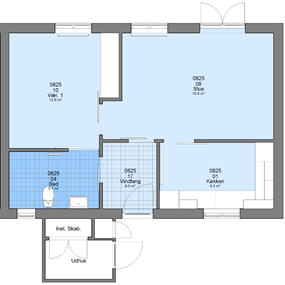
Kastanievej 5
Afd. 23

  • Størrelse: 61 m2
  • Husleje: 6.235 kr.
  • Indskud: 18.093 kr.
  • Antal rum: 2 rum
Her er nogle eksempler på plantegninger i vores boliger. Der er dog mange flere, som vi ikke har mulighed for at vise her på siden. Så får du tilbudt en bolig, så bed om plantegning for netop den lejlighed

 

Repræsentanter i afdeling 23

Knud Knudsen   Tlf. 24 84 56 81  
Høghgårdsvej 23    
8641 Sorring    

_______________________________________________________________________________________________

Ingrid Johansen Tlf. 61607585 ingridknud@hotmail.dk
Høghgårdsvej 15A    
8641 Sorring    

_______________________________________________________________________________________________

Bente Andersen  Tlf: 40 33 47 19  benta@gmail.com
Høghgårdsvej 21    
8641 Sorring